Bilocale in vendita

Roma, Via Pietro Maffi
€ 259.000
2 locali 2 locali
58 Mq 58 Mq
1 bagno 1 bagno

Bilocale in vendita

Roma, Via Pietro Maffi

Descrizione annuncio

Torrevecchia- Via Pietro Maffi -

BILOCALE IN CORSO DI RISTRUTTURAZIONE.

A 10 minuti a piedi dal Policlinico Universitario Agostino Gemelli e dall'Università Cattolica, adiacente a tutti i principali negozi, supermercati, scuole e mezzi pubblici, proponiamo in vendita un appartamento di circa 58 mq completamente nuovo, in corso di ristrutturazione CHIAVI IN MANO.
La soluzione immobiliare è posta al 2° piano all'interno di un comprensorio di 4 palazzine dotate di ascensore.
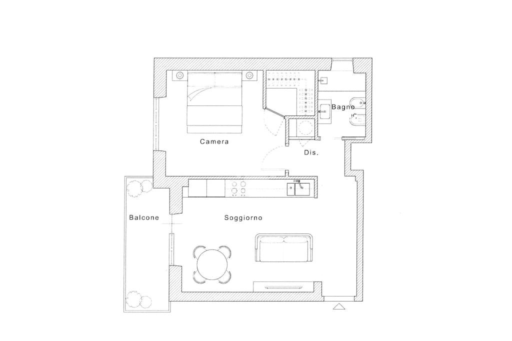
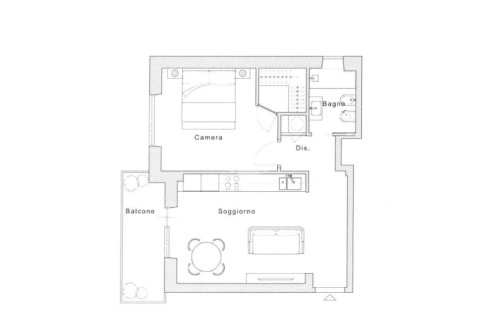
L'immobile è composto da soggiorno con angolo cottura, disimpegno, corridoio, locale lavanderia, camera da letto con cabina armadio con predisposizione del 2°bagno, bagno finestrato e balcone.
Caratteristiche specifiche:
- porta blindata
- infissi in pvc doppio vetro
- serrande elettriche
- pavimenti gres porcellanato effetto legno
- serrande elettriche
- impianto di condizionamento compresa di fornitura e posa dei macchinari stessi.
- bagno completo di sanitari, rubinetterie, piatto doccia con box e mobile sottolavabo sospeso.

Consegna prevista: fine ottobre 2025 chiavi in mano


Ogni agenzia ha un proprio titolare ed è autonoma - Le presenti informazioni, le planimetrie e le foto pubblicate non costituiscono elemento contrattuale.

Mostra tutto

Nelle vicinanze

Trasporto pubblico Trasporto pubblico
Battistini
Battistini
1,7 Km
Cornelia
Cornelia
2,5 Km
Gemelli
Gemelli
1,2 Km
stazione di Roma Balduina
stazione di Roma Balduina
1,7 Km
Capecelatro
Capecelatro
70 m
Ricariche auto elettriche Ricariche auto elettriche
Eneldrive Battistini
1,7 Km
Axpo - Stazio
2,4 Km
Rome Cavalieri, A Waldorf Astoria Resort
2,5 Km
The Church Palace
2,9 Km
Scuole Scuole
Scuole
220 m
Istituto Professionale Stendhal
330 m
Liceo Scientifico Statale Evangelista Torricelli
1,0 Km
Taggia
1,1 Km
Istituto d'Istruzione Superiore Cartesio
1,4 Km
Farmacia Farmacia
Farmacia Colapinto
310 m
Farmacia Crescimanno
770 m
Farmacia Pineta Sacchetti
940 m
Farmacia Andersen
1,2 Km
Farmacia
1,2 Km
Ospedali Ospedali
Pronto Soccorso Ospedale "Cristo Re"
520 m
Ospedale Cristo Re
540 m
Ospedali
790 m
Complesso Integrato Columbus
1,3 Km
Hospice Villa Speranza
1,4 Km
Supermercati Supermercati
Pim
460 m
PIM
570 m
Conad
600 m
Alta
870 m
Todis discount
910 m
Negozi Negozi
Oviesse
620 m
Micros
640 m
Negozi
740 m
VAMP
790 m
Alimentari
910 m
Bar Bar
Caffè Van Gogh
790 m
Bar Centodolci
840 m
Ghisbi Bar
960 m
GM Bar
980 m
Dea & Dea Bar
1,2 Km
Ristoranti Ristoranti
Happy Hours
410 m
La Villetta
820 m
Lievito 72
850 m
Ponypizza Pineta Sacchetti
850 m
Taverna Sacchetti
890 m
Mostra tutto

Caratteristiche

Rif.:
61160319
Piano:
2 di 5 con ascensore (Piano medio)
Balconi:
1
Camere da letto:
1
Arredamento:
Assente
Condizionamento:
Autonomo
Mostra tutto
Prezzo Prezzo
€ 259.000
Rata mutuo Rata mutuo
€ 1.221 / mese
Spese annue Spese annue
€ 1
Proponi il tuo prezzoProponi il tuo prezzo

Classe Energetica

G
G
G
G
G
G
G
G
G
EP globale non rinnovabile:
175.00 kW h/m² anno
Anno di costruzione:
1956
Riscaldamento:
Centralizzato
Tipo impianto:
A radiatori
Tipo alimentazione:
Metano

Ti interessa visionare l'immobile?

Fissa un appuntamento  Fissa un appuntamento

Richiedi informazioni

Clicca su Leggi per aprire l'informativa
* Questi campi sono obbligatori

Calcola il tuo mutuo

Semplice e senza impegno
Anticipo

( % )
Mutuo

( % )

pochi semplici passi

inserisci i tuoi dati
Questionario completato
Grazie per aver richiesto un appuntamento senza impegno con un nostro Consulente del Credito e Assicurativo.

Hai inserito correttamente tutti i dati necessari e a breve riceverai una e-mail con un link da convalidare per inviare i tuoi dati.
Affiliato
Immobiliare Torrevecchia Centro Srl
Via di Torrevecchia, 245 00168 Roma (RM)

Il nostro staff


  • Mirko Codianni
    Affiliato

  • Martina Colcerasa
    Coordinatrice

  • Luciano Mastropietro
    Responsabile
Via di Torrevecchia, 245 00168 Roma (RM)
Zona: Torrevecchia - Maffi - Battistini
Mostra su mappa
Orari: lunedì - venerdì 9.00-20.00 ; sabato 9.00/13.00 - sabato pomeriggio su appuntamento.
Affiliato
Immobiliare Torrevecchia Centro Srl
Via di Torrevecchia, 245 00168 Roma (RM)

2026 Tecnocasa Franchising S.p.A. - P. IVA 08365160152 - Via Monte Bianco 60/A 20089 Rozzano (MI). Ogni agenzia ha un proprio titolare ed è autonoma. Privacy policy | Policy utilizzo | Cookie policy