Trilocale in vendita

Roma, Via di torrevecchia - Torrevecchia
€ 269.000
3 locali 3 locali
92 Mq 92 Mq
1 bagno 1 bagno

Trilocale in vendita

Roma, Via di torrevecchia - Torrevecchia

Descrizione annuncio

Torrevecchia - Via di Torrevecchia -

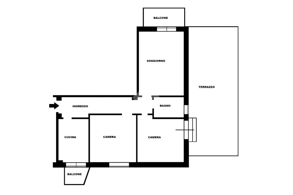
TERRAZZO DI 42 MQ E 2 BALCONI

In Via di Torrevecchia, a 500 metri a piedi da Largo Millesimo ed a pochissimi passi dai beni di prima necessità quali supermercati, farmacie, bar, ufficio postale, ecc. , proponiamo in vendita, all'interno di un comprensorio di 2 palazzine in cortina non dotate di ascensore, un appartamento di circa 92 mq posto al 1° piano. La posizione strategica, con la presenza di tutti i servizi nelle vicinanze, rende l'abitazione adatta a chi cerca praticità nella vita quotidiana. L'immobile internamente è composto da ingresso, soggiorno, cucina, 2 camere da letto, bagno, 2 balconi ed un ampio terrazzo di circa 42mq. L 'appartamento è completamente vuoto, pronto per essere abitato sin da subito.

Offriamo servizio gratuito di consulenze finanziarie personalizzate tramite la Kiron, partner del gruppo Tecnocasa.

Ogni agenzia ha un proprio titolare ed è autonoma - Le presenti informazioni, le planimetrie e le foto pubblicate non costituiscono elemento contrattuale.

Mostra tutto

Nelle vicinanze

Trasporto pubblico Trasporto pubblico
stazione di Roma Monte Mario
stazione di Roma Monte Mario
290 m
Gemelli
Gemelli
1,1 Km
Monfortani
Monfortani
40 m
Acquedotto del Peschiera/ monfortani
Acquedotto del Peschiera/ monfortani
140 m
Ricariche auto elettriche Ricariche auto elettriche
Axpo - Stazio
2,4 Km
Rome Cavalieri, A Waldorf Astoria Resort
2,8 Km
Scuole Scuole
Scuole
220 m
Scuola Materna Leonardo Bianchi
220 m
Scuola Media Statale Paolo Stefanelli - sede centrale
310 m
Scuola Maria Grazia Amici e Filomena di Meglio
330 m
Istituto Tecnico Industriale Enrico Fermi
390 m
Farmacia Farmacia
Farmacia
280 m
Farmacia Padre Pio
410 m
Nocerino
760 m
Parafarmacia
930 m
Farmacia Gemelli
940 m
Ospedali Ospedali
Hospice Villa Speranza
670 m
Policlinico Universitario Agostino Gemelli
760 m
Ospedali
1,1 Km
Complesso Integrato Columbus
1,2 Km
Presidio Ospedaliero San Filippo Neri
1,5 Km
Supermercati Supermercati
IN's
200 m
Carrefour
270 m
Agorà Supermercati
310 m
Tuodì
330 m
Agorà
340 m
Negozi Negozi
Oviesse
150 m
L'idea
260 m
Mino jeans
270 m
Negozi
290 m
RG
330 m
Bar Bar
Bar
110 m
Truzzi
190 m
Lory
210 m
Giglio
320 m
dello Studente
470 m
Ristoranti Ristoranti
Sole
180 m
La Molisanella
180 m
cinapoli
230 m
Ristoranti
340 m
L'Archetto
380 m
Mostra tutto

Caratteristiche

Rif.:
61165493
Piano:
1 di 4 (Piano basso)
Balconi:
2
Terrazzi:
1
Camere da letto:
2
Arredamento:
Assente
Mostra tutto
Prezzo Prezzo
€ 269.000
Rata mutuo Rata mutuo
€ 1.278 / mese
Spese annue Spese annue
€ 1.200
Proponi il tuo prezzoProponi il tuo prezzo

Classe Energetica

G
G
G
G
G
G
G
G
G
EP globale non rinnovabile:
175.00 kW h/m² anno
EP globale rinnovabile:
175.00 kW h/m² anno
EP invernale del fabbricato:
EP estiva del fabbricato:
Anno di costruzione:
1960
Riscaldamento:
Autonomo
Tipo impianto:
A radiatori
Tipo alimentazione:
Metano

Ti interessa visionare l'immobile?

Fissa un appuntamento  Fissa un appuntamento

Richiedi informazioni

Clicca su Leggi per aprire l'informativa
* Questi campi sono obbligatori

Calcola il tuo mutuo

Semplice e senza impegno
Anticipo

( % )
Mutuo

( % )

pochi semplici passi

inserisci i tuoi dati
Questionario completato
Grazie per aver richiesto un appuntamento senza impegno con un nostro Consulente del Credito e Assicurativo.

Hai inserito correttamente tutti i dati necessari e a breve riceverai una e-mail con un link da convalidare per inviare i tuoi dati.
Affiliato
Immobiliare Torrevecchia Centro Srl
Via di Torrevecchia, 245 00168 Roma (RM)

Il nostro staff


  • Mirko Codianni
    Affiliato

  • Martina Colcerasa
    Coordinatrice

  • Luciano Mastropietro
    Responsabile
Via di Torrevecchia, 245 00168 Roma (RM)
Zona: Torrevecchia - Maffi - Battistini
Mostra su mappa
Orari: lunedì - venerdì 9.00-20.00 ; sabato 9.00/13.00 - sabato pomeriggio su appuntamento.
Affiliato
Immobiliare Torrevecchia Centro Srl
Via di Torrevecchia, 245 00168 Roma (RM)

2026 Tecnocasa Franchising S.p.A. - P. IVA 08365160152 - Via Monte Bianco 60/A 20089 Rozzano (MI). Ogni agenzia ha un proprio titolare ed è autonoma. Privacy policy | Policy utilizzo | Cookie policy